Ufficio Vendite
Home
Apartments
Studio Apartments
Two-Rooms Apartments
Three-Rooms Apartments
Multilocals
Context
Open House
Contacts
Home
Apartments
Studio Apartments
Three-Rooms Apartments
Two-Rooms Apartments
Multilocals
Context
Open House
Contacts
Three-Rooms Apartments
FIRST FLOOR THREE-ROOM APARTMENTS
Apartment 08
Apartment 13
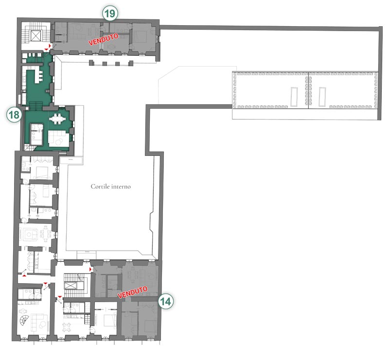
SECOND FLOOR THREE-ROOM APARTMENTS
Apartment 14
Apartment 18
Apartment 19
Third FLOOR THREE-ROOM APARTMENTS
Apartment 23B
FIFTH FLOOR THREE-ROOM APARTMENTS
Apartment 27